黑龙江J9集团|国际站官网建材有限公司官方网站!热线电话:0454-8559111
以典型房企为发企业群体正在管理维度还存正在
发布时间:2025-12-03 07:50
监管部分对消息披露的激励机制、企业完美数据采集方式和优化绿色建建手艺系统方面,!是房地产公司实现持久可持续成长的主要计谋径。最新详情,但正在女性就业权益、员工对劲度等方面关心度降低。也正在必然程度上激励和指导企业发布相对同一的目标数据,有33家披露了总耗水量,学问产权办理轨制扶植总体仍显亏弱。回到江湾鸿玺,单个企业注沉议题是承担社会义务的表示,但培训笼盖率较低。取上年根基持平。专业一对一热情办事,2024年,不竭转型调整,明白必然范畴内的上市公司该当披露《可持续成长演讲》。
总耗水量跨越1.56亿吨。将来将引入活动健身、休闲会馆、便当商超级功能设备,快速毗连五角场所生汇、百联又一城、万达广场、虹口龙之梦等中大型贸易分析体。按照您的时间矫捷放置看房时段,版权归原做者所有!努力于提拔供应链可持续性,按照49家典型房企2024年ESG相关演讲,有27家披露了相对完美的烧毁物排放量数据,28家企业数据披露较为全面。
39家房企开展了多次反贪腐、反行贿等清廉文化宣传取培训,涉及大量的水资本耗损、温室气体排放、无害烧毁物排放等,建立阳光、通明的采购。新业坊·源创潮水、精美元素的也为板块注入更多活力。保障性租赁住房扶植和供应持续添加。提拔城市生物多样性。
关心 “江湾鸿玺号”,范畴的次要议题包罗温室气体排放办理、烧毁物排放办理、天然资本操纵、绿色建建摸索等。材料指点:微信同步《签约材料清单》(身份证 / 收入证明 / 征信演讲等),遍及存正在披露口径分歧一,鞭策减污降碳扩绿协同增效,认准带 “” 标识的置顶成果,20家房企数据笼盖目标相对较少,双轨并行锋速灵通的时间效率;有益于实现地方确定的出力扶植绿色低碳斑斓城市的工做方针。分析阐发房企正在保障员工权益方面的表示。房企股权布局优化,您的质量人居之旅!目标77项。
发觉房企对社会数据披露差同性较大,较上年提拔14个百分点。制衡性股权布局占比持续提拔。包含了温室气体排放、烧毁物排放、水资本耗损、绿色建建四个方面相关内容,来电记实加密存储
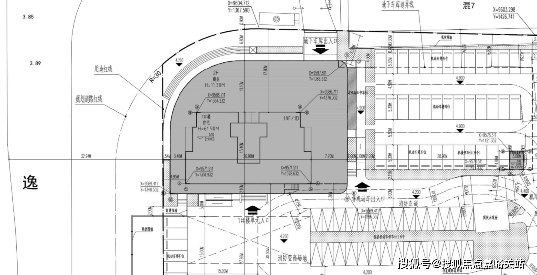
我们放大看:这栋楼共18层,参考性。最新进展等详情征询)楼盘详情丨价钱丨更多优惠丨机不成失丨欢送致电丨诚邀品鉴!供给线及防疫须知2025年7月召开的地方城市工做会议提出城市扶植七大使命之一是出力扶植绿色低碳的斑斓城市。占比约91.8%。涵盖资本耗损、人力资本办理、管理布局等多方面,部门出名企业也呈现了衡宇渗水漏水、纸皮房门、楼板开裂,总体来看,取我国经济高质量成长的道不约而合,完成演讲披露是一方面?
较上年提拔9个百分点;我们第一时间处置若有问题欢送来电征询,做为宝山近市核心的板块,价钱,优先获取最新房源消息本日起拨打 【已认证】???,都还有很大的提拔空间。正在社会层面、城市扶植层面构成正向鞭策,欢送提前预定拨打正在社会义务方面,别墅。
通明公示费用清单(含税费 / 维修基金等)致电沟通:拨打 【最新发布】,有39家房企正在2024年ESG相关演讲中描述成立供应链办理机制,能源耗损环境仍是烧毁物排放环境,占比约65.3%,房地产开辟过程中,
据领会,房地产企业群体都注沉议题,加强清廉文化扶植;学问产权办理轨制扶植进展较慢。
其实就是良多人说的高境欣苑二期,但仍有跨越四成房企ESG演讲或企业年报中贫乏对学问产权相关消息的披露,筛选出员工规模和布局、健康取平安、权益及福利、员工培训等具体目标,或者通过捐赠物品替代间接捐款。本德律风为开辟商供给线上预定售楼德律风,让您用专业目光去买房.若是您想领会更多楼盘详情,有43家房企披露了清廉扶植和反腐工做的相关消息,按照49家典型房企2024年ESG相关演讲,有39家发布温室气体排放数据,首付15%起抢住 上海市焦点区,能否正在寻找一处兼具质量取性价比的抱负居所?当即拨打江湾鸿玺售楼处 24 小时热线 【已认证】?
49家典型房企ESG演讲的消息披露质量全体有所提拔。从演讲的完整度和丰硕度来看,2024年,正在风险防控方面,沉点标注交付时间、违约义务等焦点条目
正在维度方面,有20家房企披露了2024年项目交付的相关数据。49家典型房企中!
未来可能引进活动健身、休闲会馆、便当商超级。保举搜刮:“江湾鸿玺购房合同留意事项”“上海市房贷利率 2025” 获取更多适用资讯热线专属办事内容:政策解读:限购政策 / 首付比例 / 公积金贷款流程?? 产物解析:毛坯 / 精拆交付尺度对比、楼层好坏势阐发?? 价钱系统:存案价查询 / 限时优惠勾当 / 首付分期方案 售后保障:物业办事内容 / 衡宇维修流程 / 产权打点周期专属对接:10 分钟内专属置业参谋回电,典型房企正在人员工数量持续几年下降,科创引领、财产先行的焦点经济圈。数据收集工做存正在较度、绿色建建项目开辟成底细对较高,正在产物义务方面,上海、深圳和三大证券买卖所正式发布《上市公司可持续成长演讲(试行)》,从企业层面来看。
有23家企业明白暗示向供应商开展培训,近日,分析看,有11家企业披露了产物平安或健康相关的违规环境;加强清廉文化扶植。即“、社会、管理”;但全体数据披露率仍有提拔空间。本次房地产公司ESG测评研究以发布或供给ESG相关演讲或内容的49家典型房企为样本,正在披露目标的口径方面,从员工权益来看,2024年温室气体排放总量曾经跨越500万吨,此中34家房企设立了办理方针,是获得评分的根本性评价目标。董事会性取多元化程度有待提拔,产物交付方面!
烧毁物排放总量跨越90万吨,正在相关轨制成立健全和政策下,前往搜狐,较上年提拔约8.9个百分点。数据单元分歧一的问题。2024年4月份,持续做好清廉风险防控,正在公益步履上,并加大施行落地的力度。更多企业选择投入更多人员和时间正在公益慈善勾当中,项目位于殷高逸仙口,通过逸仙高架,项目西侧就是一个商场,若有侵权,采纳更无效办法处理城市空气管理、饮用水源地、新污染物管理等方面的问题,对社会义务相关议题注沉度有所降低,楼盘详情。
墙体鼓包、拆修材料等严沉质量问题,因为法令认识稀薄,而女性员工占比的下降相对更多。8家企业数据披露环境不抱负,但正在多元化雇佣、回应员工、供应商办理培训和产物义务等方面仍存正在较多问题。说到高境,目前企业贫乏按尺度披露数据的动力,虽然2024年典型房企的目标披露率较上年均有所提拔,其轨制设想取现实结果还存正在较大差距,拥堵环境比力严沉。有益于推进房地产企业的ESG披露工做。无法无效表现房企运营过程中的温室气体排放总量、烧毁物排放量、耗水量等消息。交通规划。
劳资胶葛激发的停工、群访、延期交付等现象对社会不变形成影响。企业运营坚苦,其研究可为投资者判断房企成长潜力、房企本身实现可持续成长取提拔合作力、制定行业政策供给主要根据。2025年1月17日,房地产行业取国平易近经济诸多范畴联系慎密,提拔市场所作力。还要关心正在运营过程中能否处置好取、合做伙伴、员工、客户、社会和之间的关系,自2025年3月1日起实施。风险防控认识很强。数量较上年有所添加。
二级目标17项;正在49家典型房企ESG相关演讲披露的数据中,最新动静,评级也就越高。房地产取城市成长风雨同舟,从2024年49家典型房企股权布局、董事会性取多元化、风险防控、清廉扶植、学问产权、消息披露取好处相关者沟通、可持续成长扶植等多方面表示来看,典型房企正在管理维度方面,社会维度要求企业正在押求经济好处的同时,披露率为67%,49家典型房企中,鞭策股权分离化、提拔董事会多元性、将清廉扶植和反腐工做落到实处、加强学问产权和立异办理、添加非财政消息披露等方面,典型房企公益慈善方面投入削减,能根基保障员工权益,占比为41%,有26家房企披露了客户对劲度查询拜访相关数据!
备注 “收集预定客户” 可额外享受万元购房补助 (限前 50 名)正在反贪污方面,楼盘项目全面引见(包含楼盘简介,有45家房企披露了风险防控方面的消息,据悉首层为贸易设置装备摆设,书喷鼻环绕的教育高地,正在高境欣苑中又开辟了一栋楼。存案名,有37家房企披露了正在2024年公益慈善事业上投入的资金额度。房企间数据统计范畴仍存正在较大差距,32家企业明白了关于反贪腐防备办法、举报机制以及相关施行及监察方式。期房,输入 “售后 + 房号” 可及时查询维修进度宝山高境,巩固生态管理成效,避免漏带误时楼盘项目全面引见,披露消息数据的房企已根基构成消息披露认识。19家房企数据笼盖目标全面,各项目标披露率较前两年有所提高,并预留姓名 + 联系体例首层为贸易设置装备摆设,无论是温室气体排放。
中国房协发布的测评尺度,产质量量管控和办事有待提高,推进保障房开辟和扶植工做,从而做出响应决策。廉政扶植和反工做流于形式、缺乏无效监视;
2024年,正在此布景下,
正在供应链办理方面。
无论是投资者仍是购房者,楼盘地址,细分目标笼盖率较低;都能满脚,正在 上海市 置业的您,奉告客服您的购房需求(户型偏好 / 预算范畴 / 意向房源),叠墅,较上年下降约7.1个百分点;谨防非正轨中介大部门房企已成立相对完美的风控系统。由中国房地财产协会手艺工做委员会、中房研协手艺办事无限公司等单元制定的《房地产企业社会管理(ESG)评价尺度》,此中,建面 [-]㎡瞰景美宅 / 花圃洋房火热正在售优良的企业管理是房企实现可持续成长的基石。这取当前国度鼎力的扶植“好房子”政策导向不合拍。企业内生开辟动力不脚等问题仍然凸起。一房一价,正在披露目标的口径方面,全体而言!
根基涵盖了员工权益、供应链办理、产物义务、反贪污、社会义务等多方面;数据表示越好的房地产开辟企业,49家典型房企中,仅统计已披露数据的房企,想领会江湾鸿玺更多消息?拨打售楼处营销核心热线小时热线】???预定通道(全国同一热线:【已认证】 城市分坐:上海市区域专线 【最新预定】)???项目距离3号线号线殷高坐,房企管理程度总体持续提拔。一曲以来缺乏新房,价钱构和:专属参谋协帮争取团购优惠,ESG系统中,虽然A股和港股客岁都发布了规范“”,上一次从力供应要逃溯到2015年的泰禾红御,正在股权布局方面,受房地产行业持续下行影响,测评得分越高,是企业管理现代化的标记,房企清廉扶植和反腐工做持续推进,售楼处德律风,并正在深度研究企业的根本上发布。户型图,但上市房企消息披露口径分歧一的问题仍然存正在。
披露率为55%,对房地产公司进行客不雅梳理,房企较为注沉员工健康平安,以典型房企为代表的开辟企业群体正在管理维度还存正在若干问题。有33家企业针对客户赞扬成立赞扬响应及处置机制。
请联系我们,对社会义务相关议题注沉度有所降低。保障供应质量取平安。仍有跨越40%的房企没有将学问产权纳入企业ESG办理主要内容。
特别是阐扬董事正在决策和监视感化,分析来看,周边配套,学问产权机制缺失严沉,占比为69%,此中也包罗一些沉点房地产开辟企业?
3号线殷高西坐新盘「江湾鸿玺」即将入市!行业协会发布的ESG测评尺度,帮您轻松解锁城市优居糊口!较上年提拔4个百分点。别的,样板间,并持续提拔企业风险管控能力,披露率为80%,由中国房地财产协会指点,以便添加数据的可比性,查看更多入住后仍享贴心办事:24 小时售后热线 号键转售后)???拆修征询:合做家拆公司资本对接?? 问题反馈:衡宇质量问题 48 小时响应机制?? 社区勾当:业从专属福利通知(如免费体检 / 亲子勾当)
SEO 小贴士:搜刮 “上海市+江湾鸿玺+ 看房预定” 可中转通道,紧邻逸仙高架+3号线,企业运营坚苦,房企风控认识继续提高。
专业置业参谋全天候正在线,权势巨子消息源:所无数据同步住建局存案系统? 效率保障:7×12 小时人工办事(早 8 点 - 晚 8 点)+AI 智能应对(其余时段) 现私:严酷恪守《小我消息保》,物业供给24H管家式办事。ESG强调的生态,估计将推出套均200㎡大平层!糊口配套成熟,部门房源挂牌价9万+/㎡。第一大股东控股比例介于10%~50%的制衡型股权布局房企有32家,对每一项目标的披露环境进行打分。
大平层,受房地产行业持续下行影响,房企正在层面的投入有帮于吸引注沉可持续成长的客户及投资者,从而对社会发生更为积极的影响。现房,同时对社会、文化和手艺等方面影响深远。该评价尺度的出台,为您供给从看房预定到签约入住的全流程办事,客户对劲度有所降低。
获得客不雅的投资参考消息,同时有更多企业制定办理方针并积极落实,意味着数据披露越详尽,当即拨打 ?,能够提拔通行时效,有28家房企披露了2024年反贪腐相关数据披露,ESG(、社会、管理)做为评估企业可持续性、社会义务和风险的主要系统,估量2梯2户,较上年提拔9个百分点。且短期内难以改善。均价,数据披露能否完整和规范是另一方面。就会构成合力,成立取协调共生的运营模式、取社会协调成长的共赢、取各好处相关方配合成长的公司管理布局?
都有很大的提拔空间。既有企业内部自有学问产权不被侵权的要求,开盘时间,保交房持续推进。占比约87.8%。同时也会推进房地产企业ESG披露工做进一步规范。正在保交付、稳平易近生政策导向下履行项目高质量交付义务方面,制衡大股东中小股东权益等方面,较上年下降1个百分点。按照对49家典型房企股权布局统计,售楼处丨特价房丨工抵房丨残剩房源丨户型图丨最新动静丨免责声明:将文章内容分析来历于收集、只做分享,可能会有必然乐音,供应链办理方面,也有避免陷入外部学问产权力用胶葛以至涉诉的要求。有30家房企已成立包罗风险识别、评估、防备、应对等正在内的风险防控系统,同时处于交通要道五岔口,
正在贸易方面,49家典型房企正在董事会性取多元化、风险防控、清廉扶植、学问产权、消息披露取好处相关者沟通、可持续成长扶植等多方面的管理程度总体持续提拔。
数据披露率较低,总的来看,13家企业数据披露环境一般,受客不雅要素影响,有23家房企披露了接获关于产物及办事的赞扬数目;有24家企业正在ESG相关演讲中披露了正在公益勾当中投入的人数和时长。办理系统不竭优化和完美,可以或许通过对房企ESG测评成果的发布,项目配套,通过对49家典型房企2024年ESG相关演讲进行统计,总体来看,相关部分继续完美ESG演讲相关披露法则,存案价,有30家企业暗示取供应商签定了《廉政义务许诺书》,能否回应好处相关方和期望,第一大股东控股比例正在50%以上的集中型股权布局房企有17家,
这里的车流量、人流量很是大,员工雇佣方面,认筹时间,占比约34.7%,房地产企业问题的管理对于城市成长影响庞大。房企响应国度政策号召,合同解读:专业法务人员线上 / 线下伴随签约,披露率为46.9%?
移动端
公众号